Publicēts: 04.09.2024.
Piedāvājumi jāiesniedz līdz 10.09.2024., plkst.10.00
ID
BNP TI 2024/80
Pieteikties līdz
10.09.2024.
Instrukcija
Pievienots: 04.09.2024
1.pielikums – Finanšu/ Tehniskais piedāvājums (veidlapa)
Pievienots: 04.09.2024
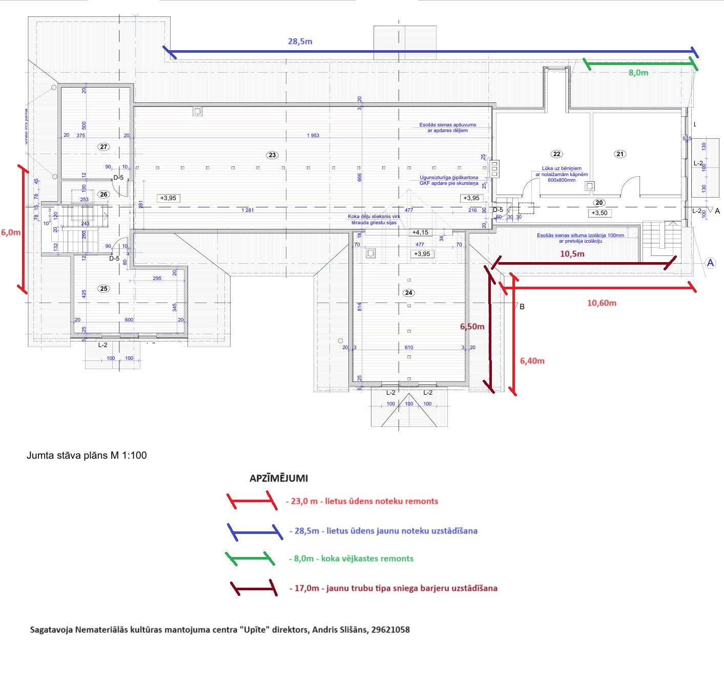
2.pielikums – Tehniskā specifikācija – remontdarbu shēma
Pievienots: 04.09.2024
18.09.2024.
| Pakalpojuma sniedzējs: |
Sabiedrība ar ierobežotu atbildību “ArhiProf”, Reģ.Nr.40103927660 |
| Līgumcena: | 2827,48 EUR (divi tūkstoši astoņi simti divdesmit septiņi eiro, 48 centi) |